
根據《中華人民共和國政府采購法》等有關規定,湖州江南工程咨詢有限公司就德清縣人民醫院乾元院區污水處理系統設備采購安裝項目進行公開招標,歡迎國內合格的供應商前來投標。
一. 招標項目編號:DQZFCG-2018-G102
二.采購組織類型:分散委托采購
三. 招標項目概況:
| 標項 | 標項名稱 | 單位 | 數量 | 預算金額 | 簡要規格描述或標項基本概況介紹 | 備注 |
| 一 | 污水處理系統設備采購安裝 | 項 | 1 | 80萬 | 詳見采購文件 |
污水處理系統技術規格要求
1、污水水量
根據醫院現有用水量統計資料,在考慮有一定的余量的基礎上,醫院污水處理系統設計規模確定為:70噸/天,按每天運行24小時,即設計每小時大處理量3噸每小時。
2、污水水質
醫院污水由于其排放的不均勻性,污水水質隨時間、季節的變動較大,污水水質的合理確定關系到污水處理設施的設計和建設是否合理、可靠,關系到是否能夠達到污水的處理要求。
3、污水處理系統要求
1、貫徹執行國家關于環境保護的政策,符合國家的有關法律、法規、規范及標準,結合醫院的具體情況,采用先進、實用、成熟、可靠的處理工藝,滿足水質、水量波動的進水要求,確保廢水經處理后達到直接排入河道的要求;
|
注:上表數據單位除糞大腸菌群數為MPN/L,PH無量綱,其余均為mg/L。消毒接觸池接觸時間≥1h,接觸池出口總余氯3-10mg/L。
廢水處理預測去除率見下表:
|
水質參數 |
進水(mg/l) |
出水(mg/l) |
去除率% |
|
CODcr |
350 |
60 |
82.85% |
|
BOD5 |
150 |
20 |
86.67% |
|
SS |
200 |
20 |
90% |
|
NH3-N |
30 |
15 |
50% |
|
大腸菌群數 |
6.0×105個/L |
500MPN/L |
99.92% |
五、污水處理工藝及流程圖
1、貫徹執行國家關于環境保護的政策,符合國家的有關法律、法規、規范及標準,結合醫院的具體情況,采用先進、實用、成熟、可靠的處理工藝,滿足水質、水量波動的進水要求,確保廢水處理后達標排放;
2、根據設計進水水質和排放水質要求,所選污水處理工藝力求技術先進成熟、處理效果好、運行穩妥可靠、節能、經濟合理,確保污水處理效果,減少工程投資及日常運行費用;
3、大程度上的降低處理成本和保證系統穩定運行;
4、妥善處理和處置污水處理過程中產生的柵渣、污泥,避免造成二次污染;
5、為確保工程的可靠性及有效性,提高自動化水平,降低運行費用,減少日常維護檢修工作量,改善工人操作條件;
6、采用現代化技術手段,盡量采用自動化控制和管理;做到技術可靠、經濟合理;
7、工藝流程圖:
六、構筑物設計
1 、化糞池2(傳染病房化糞池改造)
主要作用:沉降污水中懸浮物,確保污水進行厭氧消化,末端設細格柵阻隔粗雜、漂浮物,保證水泵及后續處理構筑物和設備的順利進行。其中傳染病區應設專用化糞池,收集經消毒處理后的糞便排泄物等傳染性廢物,化糞池利用醫院原有化糞池。
設計參數為水力停留時間:T≥36h。池型:三室化糞池,清掏周期為180-360d。配套設備:
①格柵框,格柵間隙15-20mm,數量1套,設在化糞池出口;
② DN110PVC化糞池排水管道;
2 、格柵井
主要作用:攔截較大的飄、懸浮物,保護水泵及其它主體設備。保證后續設備的穩定運行。設計說明:考慮到醫院污水會有部分手術殘留物和其它雜質排入化糞池,并且經常會有塑料薄膜等難降解或者未降解的雜物隨污水流入污水處理系統,導致水泵堵塞等事故發生,故在污水進入調節池之前設立格柵井進行攔截。
設計過柵流速: 0.7m/s設計大時過流量:20m3/h
格柵井尺寸: 0.75×0.75×1.0m數量結構:1座,鋼混。
配套設備:
①人工格柵,格柵間隙15-20mm,數量2套,格柵池設在現有調節池前。
3、 收集池
主要作用:單獨收集傳染病房污水并消毒,污水經過消毒后,再泵入調節池。
設計說明:根據《醫療機構水污染物排放標準》GB18466-2005中4.1.5和5.2的有關要求。傳染病房的綜合醫療機構,應將傳染病房污水與非傳染病房污水分開。傳染病房的污水、糞便經過消毒后方可與其他污水合并處理。傳染病醫療機構和綜合醫療機構的傳染病房應設專用化糞池,收集經消毒處理后的糞便排泄物等傳染性廢物。
停留時間: 24h
尺 寸: 1.5×1.5×1.5m
有效水深 1.2m
容 積:2.70m3
數 量:1座,鋼砼防腐配套設備:
①電解法二氧化氯發生器YXD-50 1臺,產氯量50g/h;
②在線余氯儀1套;
③穿孔曝氣系統3m2;
④收集池不銹鋼排污泵QW50-10-10-0.75,2臺1用1備;
⑤ 防腐浮球液位控制器1套;
4、調節池(利用現有調節池+新增部分)
主要作用:調節水量,均化水質,保證后續處理的穩定運行并有一定的水解酸化作用,能去除部分雜質。
設計說明:因為醫院污水的水質水量日變化較大,當這個變化大于微生物所能承受的生存環境變化的極限時,能導致微生物大量死亡甚至生物處理系統的崩潰。因此將水質水量均化后穩定在一定的數值內,保持微生物生存環境的穩定,才能確保生物處理系統的穩定運行。
停留時間:16h
原調節池尺寸:4.5×3.0×2.5m
新增部分: 2.0×3.0×3.0(碳鋼)
容 積: 48m3
數 量: 1座,鋼混+碳鋼配套設備:
①調節池排污泵:型號GW50-10-10-0.75,數量4臺,二用二備;
②防腐浮球液位控制器2套;
③引水罐¢500,1套;
④DN50電磁流量計;
5、 缺氧池
主要作用:通過池中的缺氧微生物對回流過來的含有大量硝酸鹽及亞硝酸鹽的混合液泥進行反硝化脫氮,降低部分有機污染物濃度。通過水解作用提高廢水可生化性,經缺氧處理后的污水自流進入好氧池。
設計說明:通過反硝化菌反硝化脫氮,確保氨氮達標排放。停留時間: 5.60h
有效容積:16.8m3
有效水深: 2.80m
結構尺寸: 3.00×2.00×3.00m
數 量: 1座,碳鋼環氧煤瀝清防腐配套設備:
穿孔曝氣系統6m2;
¢100懸浮生物填料8.5 m3;
6 、生物接觸氧化+MBR好氧池
主要作用:微生物通過同化及異化作用將水中的大部分的污染物降解,達到污水凈化的目的。
設計說明:接觸氧化法是活性污泥法的改進。克服了活性污泥法絲狀膨脹等的弊端,MBR池能極大提高了系統的生物容量和系統運行的穩定性。
有效容積: 24.3m3
容積負荷: 0.4KgCODcr/m3.d
總停留時間: 8.0h
結構尺寸: 3.0×3.0×3.0m
有效水深: 2.70m
數 量: 1座,碳鋼環氧煤瀝清防腐配套設備:
①¢100懸浮生物填料6.0m3;
②¢215微孔曝氣器20套;
③曝氣系統5m2;
④沉水式風機2臺TSW-8055 ,4.48m3/min,3000mmAq,1用1備;
⑤超強抗污染型膜 KY-GXMBR-10-Co-PVDF 25片;
⑥MBR不銹鋼膜架1套,2350×900×1800mm
⑦MBR抽水泵 SZ075B ,2臺1用1備;
⑧防腐浮球液位控制器1套;
⑨GW50-10-10-0.75 污泥回流泵2臺,一用一備,排泥系統1套;
7、污泥池
主要作用:收集污泥,通過自然發酵消減污泥總量,同時添加二氧化氯在池中完成污泥消毒過程。
設計說明:污泥在收集過程中往往帶有大量的水分,多余水分可以通過溢流管回流到調節池再進行處理。
有效容積: 8.4m3
停留時間: 定期消毒壓濾
結構尺寸: 3.0×1.0×3.0m
數 量: 1座,碳鋼玻璃鋼防腐
配套設備:
①隔膜壓濾機:XMYG800-30UB,30m2 1臺;
② 隔膜泵1臺,ARO-1〞;
③ DN50管道混合器1套;
④空壓機1臺,氣量0.36m3/min,0.8MPa;
⑤穿孔曝氣系統4.0m3;
⑥ PAM加藥系統1套,含加藥泵、配藥槽、溶藥裝置;
⑦余氯儀1套;
8、接觸消毒池、脫氯池
主要作用:對出水進行消毒并降低余氯
設計說明:因為醫院污水含有大量的致病微生物,通過生物處理過程并不能保證完全殺滅水中的致病微生物,因此需要設立消毒池對排水進行消毒處理。
池 型:橫向分隔推流池。尺 寸:1.0m×3.0m×3.0m有效水深:2.50m
數 量: 1座,碳鋼玻璃鋼防腐接 觸時間:T=2.50h
污 水投氯 量:K=35g/t配套設備:
①穿孔曝氣系統6.0m2;
②電解法二氧化氯發生器YDX-200,1臺,產氯量200g/h;
③在線余氯儀2套;
④硫代硫酸鈉加藥系統1套;
⑤消泡劑加藥系統1套;
⑥ PH控制系統1套PC-365;
⑦ DN50電磁流量計1套;
9、管理操作防雨棚
主要作用:管理操作、存放設備預算尺寸:11.0m×4.5m×4.0m
10、食堂隔油池
主要作用:食堂廢水產生的油污隔離數量:1座,鋼 砼
尺寸:1.5mL×1.0W×1.55H
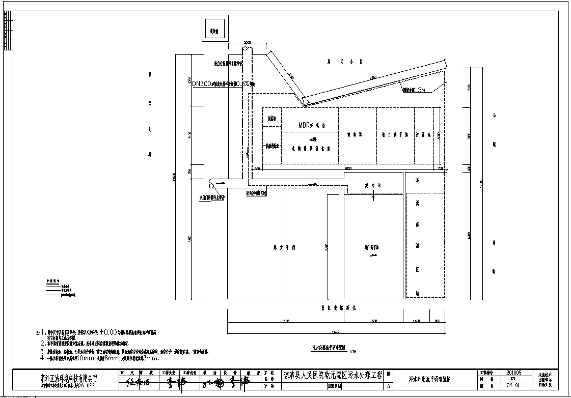
七、院區平面布局
依據“合理布局、流程有序、功能分區、布置緊湊,既有利于生產又方便管理”的院區平面布置原則,同時考慮到原有化糞池、地形等條件,結合院區進出水方向,院外道路和建筑物等因素,通過精心設計、分析后確定院區平面布置圖。管理操作防雨棚用于污水處理鋼池及處理設備防雨。該方案的特點是處理單元布置緊湊,占地面積小,污水處理流程順暢,操作管理方便,對周邊建筑及環境影響小。
八、 高程設計
污水處理院區地面高程按設定為相對標高+0.00m,污水處理站高標高+4.00,底標高為原有調節池標高。
污水站的進水由調節池頂的排污泵提升進入處理設施處理,實現一次提升完成全流程的目的。
MBR池混合液經泵一部分回流入生化池,剩余污泥排入污泥池消毒壓濾后做危廢處理。九、結構形式及技術要求
1、建筑物:一般情況下,采用磚混結構。基礎采用柱下獨立基礎和墻下條形基礎。有特殊要求的建筑可采用框架或排架結構。
2、構筑物:本工程屬小型規模的污水處理站,其主要構筑物均為盛水構筑物,對結構防水性能有較高的要求。故盛水構筑物均采用鋼筋混凝土結構。材料要求:混凝土C35或C40,墊層C25。水灰比不大于0.55
抗凍標號:D50抗滲標號:S6
十、污水處理系統工程量清單
1、土建及附屬工程工程量清單
|
序號 |
名稱 |
規格 |
材質 |
數量 |
單位 |
|
1 |
防雨彩鋼棚 |
11×4.5×5.0m+ 3.0×10.0×5.0m |
熱鍍鋅單板 0.6mm厚 |
80 |
m2 |
|
2 |
壓濾機基礎 |
2.55×1.10m |
磚混內玻璃鋼防腐 |
1 |
座 |
|
3 |
收集池 |
1.5×1.5×1.5m |
鋼砼內防腐 |
1 |
座 |
|
4 |
一體化處理設備 基礎挖方、運方 |
梯形體積 |
硬化地坪碎 石料、雜土 |
60 |
m3 |
|
5 |
一體化處理設備基礎 地坪硬化0.3m |
面 積 (4.0+7.5)×11m÷2 |
鋼 砼 |
19 |
m3 |
|
6 |
傳染病房化糞池第三 格與新建陰井對接 |
¢800 陰井現場配套 |
鋼砼、磚混 |
1 |
批 |
|
7 |
開挖溝槽及砌筑管溝 上設混凝土蓋板 |
管溝寬200mm,深250mm 現場配套 |
磚混、鋼砼 |
32 |
m |
|
8 |
¢800陰井帶井蓋 |
¢800×1000mm 現場配套 |
磚 混 |
8 |
只 |
|
9 |
DN300波紋排污管 |
雙壁波紋管S1 |
PE |
110 |
m |
|
10 |
開挖陰井溝槽及埋管回填 |
溝深1000mm溝槽表面混 凝土硬化地坪100mm,下層為泥土 |
泥土、鋼砼 |
115 |
m |
|
11 |
DN100PVC 排水管道鋪設 |
現場配套 管路通過活接連接 |
PVC |
185 |
m |
|
12 |
污水處理區塊上空舊 蒸汽管道拆除 |
DN150管徑現場配套 |
碳 鋼 |
25 |
m |
|
13 |
砌圍墻 |
10m長,1.3m高 與現場配套 |
磚混 |
1 |
批 |
|
14 |
食堂隔油池 |
1.5mL×1.0W×1.55H |
鋼 砼 |
1 |
座 |
|
15 |
不可預見費用 |
現場配套 |
|
1 |
批 |
2、主要工藝設備及材料清單
|
序號 |
設備名稱 |
規格型號 |
單位 |
數量 |
材質 |
推薦品牌 |
|
1 |
人工不銹鋼格柵 |
格柵間隙15-20mm 500W×700H |
套 |
2 |
304 |
非標 |
|
2 |
格柵框 |
格柵間隙15-20mm 600W×400H |
套 |
1 |
304 |
非標 |
|
3 |
調節池排污泵 |
GW50-10-10-0.75 1用1備 Q=10m3/h,H揚=10m,P=0.75Kw |
臺 |
4 |
碳鋼 |
陽光、上海凱泉、連成 |
|
4 |
收集池排污泵 |
QW50-10-10-0.75 1用1備Q=10m3/h,H揚 =10m,P=0.75Kw |
臺 |
2 |
不銹鋼 |
陽光、上海凱泉、連成 |
|
5 |
防腐浮球液位控 制器 |
配 套 |
套 |
6 |
塑料 |
晰營、長 營、高超 |
|
6 |
穿孔曝氣系統 |
DN32 |
m2 |
24 |
UPVC |
非標 |
|
7 |
懸浮生物填料 |
¢100 |
m3 |
14.5 |
PP |
奇美、凱 衍、清溪 |
|
8 |
微孔曝氣器 |
¢215 |
套 |
20 |
ABS |
奇美、凱 衍、清溪 |
|
9 |
電解法二氧化氯 發生器 |
YDX-200 產氯量 200g/h |
套 |
1 |
UVPC |
秀霸、玉 潔、永興、 |
|
10 |
電解法二氧化氯 發生器 |
YDX-50產氯量500g/h |
套 |
1 |
UVPC |
秀霸、玉 潔、永興、 |
|
11 |
消泡劑加藥系統 |
含GW045計量泵、配藥 槽、溶藥裝置等 |
套 |
1 |
PVC PP |
巧泰、南 方、陽光 |
|
12 |
硫代硫酸鈉加藥 系統 |
含GM0120加藥泵、配 藥槽、溶藥裝置等 |
套 |
1 |
PP PVC |
巧泰、南 方、陽光 |
|
13 |
PAM加藥系統 |
含GM0170加藥泵、配 藥槽、溶藥裝置等 |
套 |
1 |
PVC PP |
巧泰、南 方、陽光 |
|
14 |
PH自動控制加藥 系統 |
PC-365 |
套 |
1 |
復合 |
諾普、合 泰、美控 |
|
15 |
SEKO在線余氯儀 |
K080CLPM0800 |
套 |
4 |
復合 |
賽高、博克 斯、AI-ON |
|
16 |
沉水式風機 |
TSW-8055 1 用1備4.48m3/min 0.3MPa |
臺 |
2 |
鑄鐵 |
川源、章晃、春鼎 |
|
17 |
引水罐 |
¢500 150L |
套 |
1 |
PP |
水凌、貝 特、宏澤 |
|
18 |
電磁流量計 |
DN50 |
套 |
2 |
四氟內襯 |
工考、拓 勝、美控 |
|
19 |
MBR膜 |
超強抗污染型 KY-GXMBR-10-Co-PVDF |
片 |
25 |
聚偏 氟乙烯 |
膜天、碧水源、凱衍 |
|
20 |
MBR不銹鋼膜架 |
2350×900×1800mm |
套 |
1 |
不銹 鋼 |
膜天、碧水 源、凱衍 |
|
21 |
MBR抽水泵 |
SZ075B 1用1備 |
臺 |
2 |
不銹 鋼 |
粵華、連 成、陽光 |
|
22 |
污泥回流泵 |
GW50-10-10-0.75 1用 1備Q=10m3/h,H揚 =10m,P=0.75Kw |
臺 |
2 |
碳鋼 |
陽光、上海凱泉、連成 |
|
23 |
隔膜壓濾機 |
XMYG800-30UB,30m2 |
臺 |
1 |
PP隔 膜 |
興源、綠 鼎、恒達 |
|
24 |
隔膜泵 |
ARO-1〞 |
臺 |
1 |
鋁合金 |
英格索蘭、 威爾頓、固瑞克 |
|
25 |
管道混合器 |
DN50 |
套 |
1 |
UPVC |
非標 |
|
26 |
空壓機 |
0.36m3/min,0.8MPa |
臺 |
1 |
碳鋼 |
杭空、熊 貓、開ft |
|
27 |
鋼制一體化處理池 |
9.00×3.00×3.00m 8mm底板10mm 含池體、支撐、走道板、樓梯、樓梯平臺、防腐 |
套 |
1 |
碳鋼 環氧防腐部分玻璃鋼防腐 |
非標制作 |
|
28 |
管道、閥門、彎頭、 配件等 |
配 套 |
批 |
1 |
UPVC |
水友、估 利、金德 |
|
29 |
油 漆 |
配 套 |
批 |
1 |
醇酸 樹脂 |
多樂士、立 邦、大橋 |
|
30 |
電線電纜 |
配 套 |
批 |
1 |
橡膠 銅芯 |
遠東、熊 貓、永通 |
|
31 |
電氣控制柜 |
配 套 |
套 |
1 |
不銹 鋼 |
非標 |
|
32 |
管道保溫海綿 |
配 套 |
批 |
1 |
橡塑 |
非標 |
|
33 |
微生物菌種 |
配 套 |
噸 |
3 |
污泥 |
專用 |
1、電氣:因為污水處理廠的總裝機負荷不高,所以不必單獨設置變電站,可以考慮從院區的變電室直接接線。
2、接地:低壓配電系統的接地保護形式為TN系統。
3、控制系統:采用控制柜集中控制的方式。提升泵通過液位控制器控制,實行“高開低停”運行;氯加藥量通過余氯傳感電極控制;余氯去除通過余氯傳感電極自動控制脫氯加藥;MBR抽水泵通過時間控制器和液位控制器同時控制。其余泵開啟通過手動控制。
本工程用水由城市自來水管網供給,水量、水質、水壓應滿足要求。本工程日用水量為
10m3/d,Qmax=3m3/h,主要為溶藥及職工生活用水、壓濾機沖洗用水。十三、設備調試工作內容:
1、完成電氣、設備調試;
2、完成對操作人員現場培訓;
3、完善工程出現或遺留下來的問題;
4、協助水質第三方檢測工作;
5、完成相關的轉、交接手續及資料;
6、建立、完善污水站操作規程,并培訓污水站管理人員和操作人員。
7、檢測合格后,做好工程設備保修工作及技術咨詢工作。十四、主要技術經濟指標(排放標準)
注:上表數據單位除糞大腸菌群數為MPN/L,PH無量綱,其余均為mg/L。消毒接觸池接觸時間≥1h,接觸池出口總余氯3-10mg/L。
十五、工程保修承諾及具體措施
1、設備保修期限為兩年,自安裝完成竣工驗收合格之日起開始計算;
2、保修期內,接到處理故障通知后,2小時內回復處理意見,必要時派人迅速到達現場;
3、長期提供優質優價的備品和備件,建立定期回訪制,提供終身技術服務。
十六、污水處理池平面布置圖
以上招標資訊由秀霸牌二氧化氯官網(www。sdclo2。com)為您轉載,如有侵權,請聯系電話400-8697-001刪除。
二氧化氯、過硫酸氫鉀廠家供貨熱線:④00⑧⑥⑨⑦00①
,本廠承諾不參加該投標項目,歡迎各地消毒產品經銷商來電洽談合作事宜。